Current Work

 

LAKEVIEW VILLAGE

Jackson's Point, Ontario

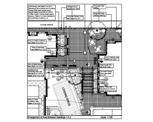
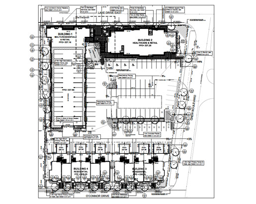
Lakeview Village is a multi-use development in Jackson's Point in Georgina. The develpment includes townhouses, low rise residential, retail and medical offices. The development fronts onto Lake Drive, the main scenic road in Jackson's Point. Care was taken to develop a streetscape venacular that reflected many of the good qualities of the existing urban streetscape while setting the standard for future development in Jackson's Point. A pedestrian plaza has been created between the two buildings creating a comfortable space for resting and people watching.

When finally complete, the development will add to the pedestrian friendly character of this tiny village.