Community

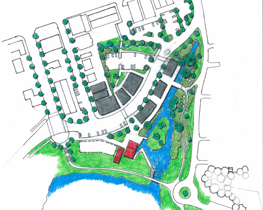
millbrook master Plan concepts

Millbrook, Ontario

Millbrook is a small, charming village in central eastern Ontario with a proud heritage preserved in historic buildings and their connection to the river and the Mill Pond. Public facilitators Ogilvie, Ogilvie and Company were engaged by the Township and current owners, Otonabee Region Conservation Authority (ORCA), to ascertain the importance of keeping and restoring Needler's Mill. MSA produced master plan ideas for presentation that explored how the Mill and surrounding land could be utilized. The concepts articulated how to celebrate the history of the mill and its importance to the village while creating a great civic space that would enhance and enrich the community, both emotionally and economically.